CLH Commercial Buildings
       
 
 

Factory Direct

• Modular

• Manufactured

• Mobile

 
 
email:
sales@clhcommercial.com
phone:
(888) 321-1537
fax:
(970) 221-1556

Oil Field and Industrial Buildings

If you need housing NOW, call CLH Commercial Buildings for a quote. Our living quarters are built quick, 30 days or less in most cases. And they’re built tough. Designed to fit your employee housing needs. And if your project goes from North Dakota to Texas, these units can go with you, saving you time and money. When you need employee housing, Call CLH Commercial Buildings and tell us what you need.

Floor Plans

 
399 sq. ft. oil field building
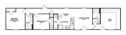
656 sq. ft. skid
 
929 sq. ft. drilling unit
966 sq. ft. drilling unit
 
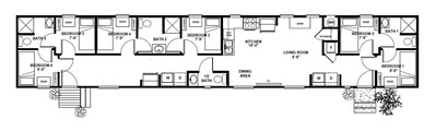
1039 sq. ft. bunkhouse
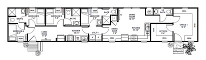
1039 sq. ft. tool pusher
 
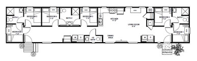
1140 sq. ft. 6 bedroom bunkhouse
 
2280 sq. ft. 10 room man camp
2280 sq. ft. 12 room man camp
 
2220 sq. ft. 10 room motel
 

Specifications

Apartment Standard Specifications

Man Camp Standard Specifications

Motel Standard Specifications

Apartment/Motel
Man Camp
Apartment/Motel
Man Camp

 

phone: (888) 321-1537 email: sales@clhcommercial.com fax: (970) 221-1556
 
website design by FortCollinsWebWorks.com