Office Buildings
Whether you need a Temporary mobile office or a permanent Modular office, CLH Commercial Buildings can help. We can custom build an office to your specifications and deliver it to your site when YOU need it. An office built in a controlled factory environment means less construction time saving you money. Call CLH Commercial Buildings today and tell us what you need.
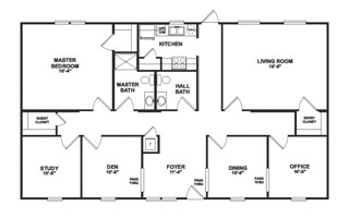
Floor Plans
Specifications
Office Unit Building Specifications |