Factory Direct
• Modular
• Manufactured
• Mobile
email:
sales@clhcommercial.com
phone:
(888) 321-1537
fax:
(970) 221-1556
Home
About Us
Offices
MH Community
Oil Field/Industrial
Government Housing
Modular Duplexes
Contact Us
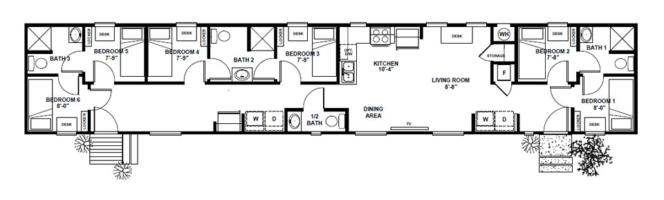
1039 sq. ft. Bunkhouse
phone: (888) 321-1537
email:
sales@clhcommercial.com
fax: (970) 221-1556
website design by FortCollinsWebWorks.com