Factory Direct
• Modular
• Manufactured
• Mobile
email:
sales@clhcommercial.com
phone:
(888) 321-1537
fax:
(970) 221-1556
Home
About Us
Offices
MH Community
Oil Field/Industrial
Government Housing
Modular Duplexes
Contact Us
Singlewide Mobile Homes
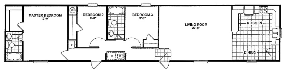
Model 1178-HS324
16' x 76' (80' overall)
Approximately 1178 sq. ft.
3 Bedrooms
2 Baths
phone: (888) 321-1537
email:
sales@clhcommercial.com
fax: (970) 221-1556
website design by FortCollinsWebWorks.com